1.0 SPLOŠNO
Ta tip ograje predstavlja nadgradnjo klasičnega tipa:
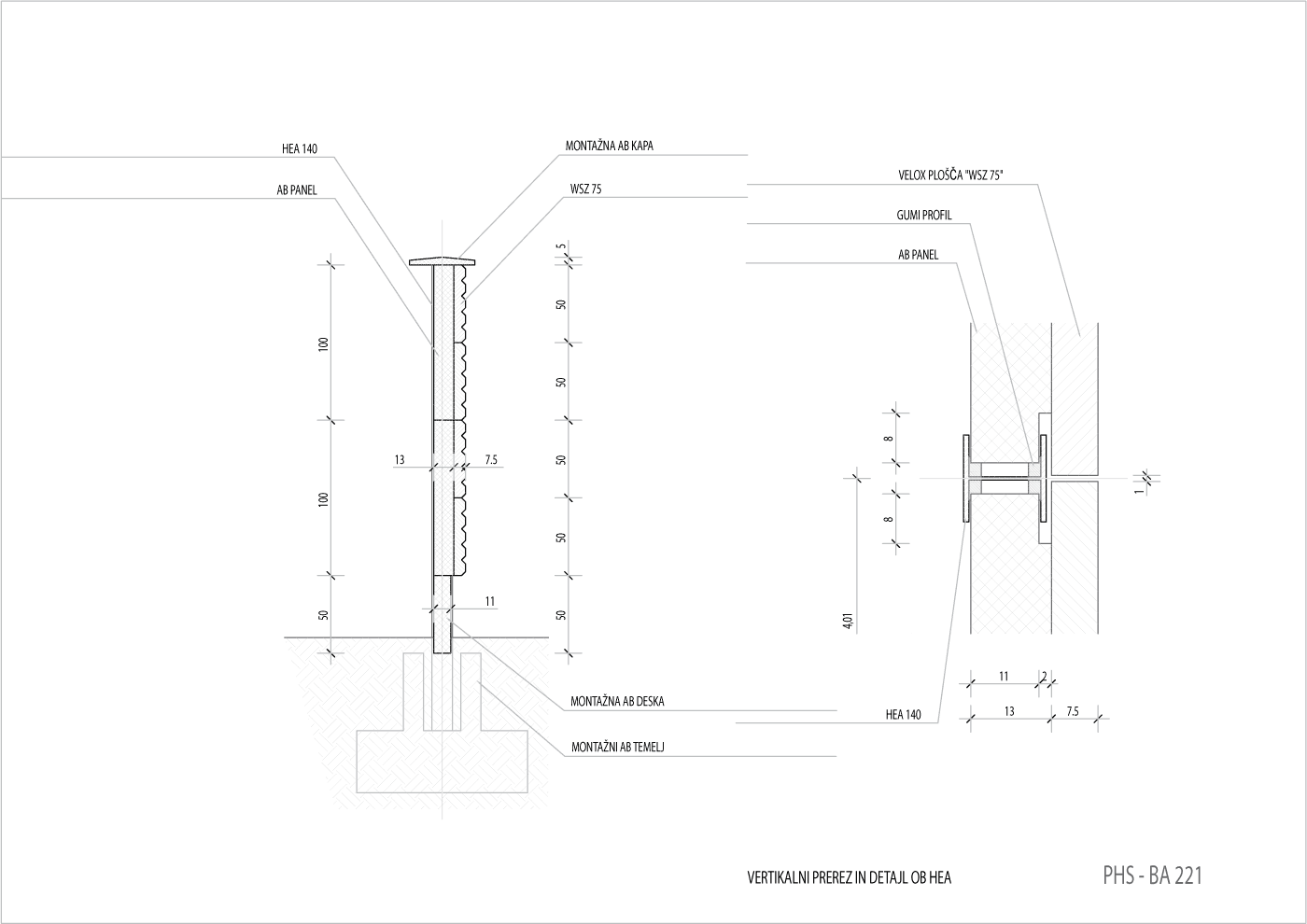
- raster 4,01m
- lesocementne absorbcijske plošče WSO 70 do 80 mm in
WSZ 100 mm
- nosilni HE-A profili
- velikostenski paneli debeline 130 mm, dolžine 3960 mm in
višine do 1000 mm,

z razliko, da v tej izvedbi osnovni leseni okvir nadomestimo z armirano-betonskim panelom.
Pri tej izvedbi se v nosilne HE-A jeklene profile vstavijo predfabricirani armirano-betonski paneli, sestavljeni iz lesocementnih absorbcijskih plošč ustreznih debelin in izvedb, skladno s potrebami po dušenju hrupa, ki se vgradijo na betonski panel že v fazi predfabrikacije ter se povežejo z betonskim jedrom s sidri.
Pri tej izvedbi ograje je hrbtna stran ravna betonska površina z vidnimi HE-A profili ali struktuirana - metličena, medtem ko se s čelne strani profili prekrijejo z lesocementnimi absorbcijskimi ploščami.
Ob upoštevanju splošnih pogojev za izvedbo protihrupnih ograj ima ta tip ograje prednost pred klasično izvedbo z okvirjem v tem, da ob enakem nivoju absorbcije hrupa dosežemo bistveno višjo stopnjo zvočne izolativnosti, istočasno pa leseni okvir nadomestimo s trajnejšim in stabilnejšim AB panelom.
Za dosego projektirane višine ograje se tako izdelani paneli ustreznih dimenzij nizajo v višino.
2.0 TEHNIČNE KARAKTERISTIKE
Protihrupne ograje PHS–BA 221 iz lesocementnih plošč z betonsko sredico se uvrščajo med absorbcijske oz. visokoabsorbcijske protihrupne ograje, odvisno od debeline in vrste lesocementnih plošč, ki se pritrdijo na nosilni betonski panel.
Meritve o absorbciji in zvočni izoliranosti so bile opravljene na Zavodu za gradbeništvo – ZAG v Ljubljani.
Odpornost ograje – plošč proti mehanskim obremenitvam, še posebej zaradi stabilne betonske sredice je zelo dobra.
Arhitektonsko se tudi pri tej izvedbi z primerno izbrano obliko in barvnim vzorcem lepo prilagaja okolju. Barva je lahko akrilna ali PVC.
- račun zvočne izolacije
“ZTV – LSW 81” : LA,R,Str = ( nad 25 dB )
- račun absorbcije zvoka
“ZTV – LSW 81” : LA,alfa,Str = ( A2 – A3 )
3.0 TEHNIČNI POGOJI ZA PHS –
BA 221 PROTIHRUPNE OGRAJE
Tehnični pogoji veljajo za konstrukcijo, izvedbo in postavitev PHS–BA 221 montažnih protihrupnih ograj z lesocementnimi ploščami z betonsko sredico ob cestah – višine od 0,5m do 6,0m.
Vse meritve so bile opravljene po SATANDARDU SIST EN 20354 (1998), SIST EN 1793-1 (1999), SIST EN 1794-1 (dodatek C - 1998) in požarni BS 476/7, 1971 oz. JUS U.JI.060, ki je bil osnova za izdelavo in postavitev protihrupnih ograj, kjer se uporablja lesocementni absorbcijski material.

|